O prostoru
Vnitřní prostory byly rekonstruovány v roce 2018 pro potřeby prodejce kol. Je možno zvážit zajištění stavebních úprav pro Vaše potřeby.
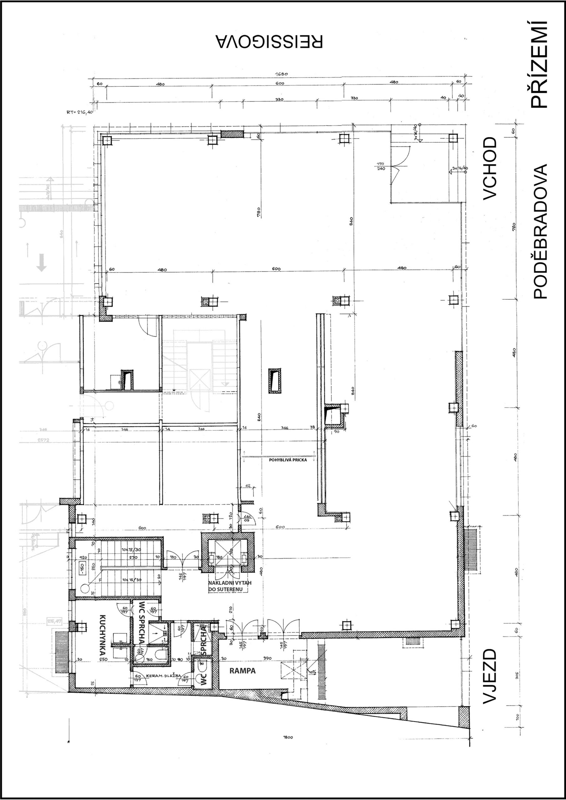
320 m2 v přízemí je rozděleno na prodejní, kancelářské a skladovací prostory.
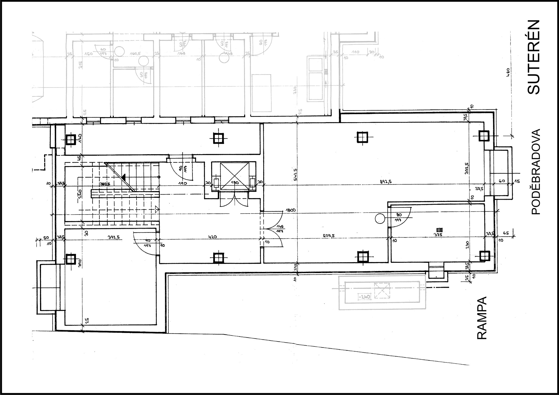
Největší možná prodejní plocha je 225 m2 ve tvaru F. Je možno přidat druhé vstupní dveře a rozdělit prostor pro dvě menší oddělené prodejny. Suterén má 85 m2, s nákladovým výtahem, vhodný pro sklad nebo dílnu.
Celková plocha po uzamčení je 458m2 , 411m2 vnitřních prostor a 47m2 venkovní nákladní rampa.





